The most important unused theatre in the UK

|
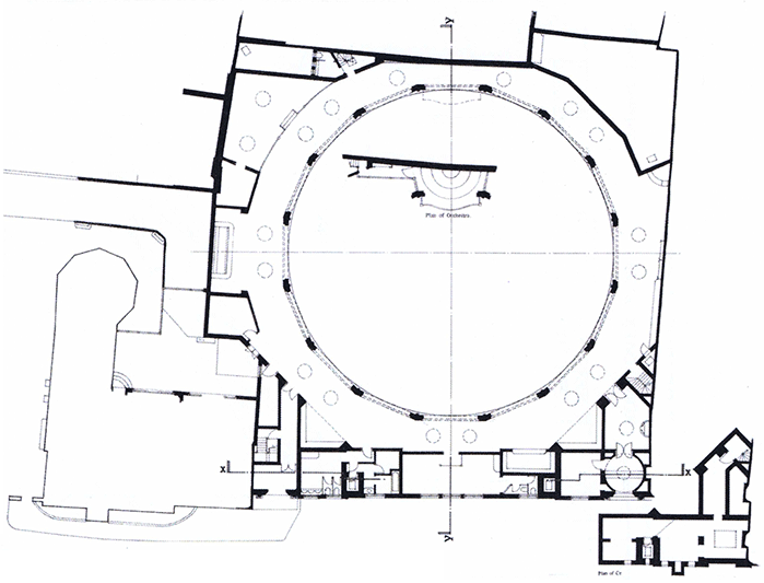
Lewis Karslake's 1897 ice-skating rink already shows the basic shape of the building but this was substantially altered by Frank Matcham in 1901. The small decorative balconies on the framing three-storey towers are still present until at least the 1949. The plan of the skating rink (right) shows the original circular arangement on the skating area surrounded by a promenade area. |
![]() Plan redrawn by Jaques Muir Partners from Karslake's original |
||
![]() Frank Matcham extended the facade and added several more doors, as seen in this atmospheric evening-time photograph from c1904. Note the juliet balconies on the end towers. |
It is seen from the reverse angle in 1910, around the time of Tom Barrasford's death. |
|
![]() In 1922 the Middle Street frontage is dressed in its best, with hanging baskets and display boards. No doubt the couple with the push-chair were carefully placed to show how inviting and family-friendly the theatre was. This picture is also useful in showing the original canopy. should anyone want to restore it. |
![]() By 1949 further embellishments are clearly designed to remind passers-by of the name, which has been incorporated into the edging of the canopy and is now very prominent as a vertical sign that would be visible from both ends of Middle Street. |
|
![]() In 1964 the Hippodrome was used as a location in the film Be My Guest (released April 1965). These stills from a short scene of a couple arriving at the theatre—clearly shot in the middle of the night, when the theatre and Middle Street look forlorn—show the entrance in its dying days as a variety theatre. Note that the canopy has all but disappeared. |
![]() A poster on the inner wall advertises a variety show starring Frankie Vaughan and what appear to be the names of Tommy Cooper and Cilla Black. These three had been on the bill together at the London Palladium for a season from 13 May 1964. Did the show move on to Brighton? |
|
![]() In 1965, before its conversion into a bingo hall. The canopy has disappeared, as have the juliet balconies. |
![]() To the credit of the Rank Organisation, the canopy was restored, albeit with the Mecca logo rather than the original design. |
|
![]() The Hippodrome facade now |
![]() The 'get-in' area from Ship Street. It is important to protect this space for access by large pantechnicons delivering sets and equipment. The right-hand section of the brickwork, with all the windows, houses dressing rooms and technical areas. The left-hand section is the fly-tower above the stage, the glassed-in roof in front of which is the rear of the hairdressing salon at 19 Ship Street. Hippodrome House is the building in the distance above the dividing wall. |
|
Go to Gallery: the interior
Go to Gallery: the shows
Go to Gallery: plans and designs